г. Краснодар, ул Домбайская, д 55
Пн-пт с 09:00 до 21:00, Сб-вс с 10:00 до 18:00

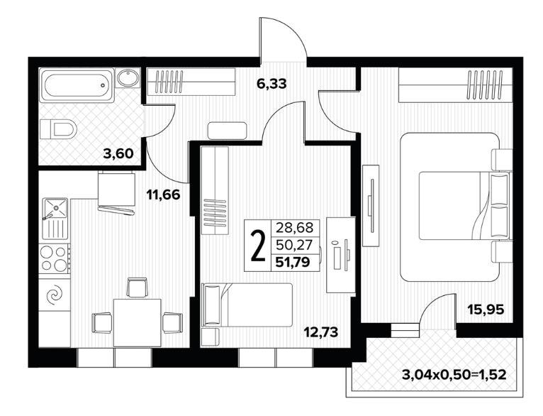
2к квартира в Краснодаре ID: J1264

Краснодар, Карасунский, Новознаменский, ул. Дальневосточная, стр. 1

Сдача 4 / 2025 г.
Материал Монолитный
Кв. в продаже 8
4 990 000
от 96 350 /м²
Рассчитать ипотеку
QR
Ссылка на объект

Описание

Жилой комплекс состоит из 11 монолитных корпусов высотой до 21 этажа. В оформлении стен зданий используется навесной вентилируемый фасад. Во всех домах выполнена дизайнерская отделка входных групп и установлены современные скоростные лифты.

Проектом предложено множество планировочных решений: в наличии квартиры, как классического типа, так и европланировки. Сдаются они с подчистовой отделкой и высотой потолков 2,76 метра. Все лоджии остеклены.

На придомовой территории комплекса, спроектированной по концепции «двор без машин», расположены детские и спортивные площадки, обустроены места для отдыха. Для владельцев автомобилей предусмотрены подземный паркинг и стоянка.

ЖК находится в районе Новознаменский. В пешей доступности расположены школа и детский сад. До центра Краснодара 30 минут транспортом.

Рядом Аэропорт Краснодар уже работает, так же рядом самый большой ТЦ в Европе OZ MOLL, строится новая прямая дорога на Парк Галицкого
Помощь в открытии СЕМЕЙНОЙ ИПОТЕКИ 4,5%

Характеристики

  • Тип недвижимости Новостройки
  • Населенный пункт Краснодар
  • Район Карасунский
  • Микрорайон Новознаменский
  • Адрес ул. Дальневосточная, стр. 1
  • Название ЖК ЖК «Друг»
  • Идентификатор корпуса ЖК Литер 1
  • Срок сдачи год 2025 г.
  • Класс жилья Комфорт
  • Тип дома Монолитный
  • Тип сделки переуступка прав
  • Стадия строительства дом построен, но не сдан
  • Срок сдачи квартал 4
  • Апартаменты нет

Задать вопрос


2-к.квартира, 51.79 м², 7 эт. 4 990 000
  • Количество комнат 2
  • Общая площадь 51.79 м²
  • Жилая площадь 28.68 м²
  • Площадь кухни 11.66 м²
2-к.квартира, 51.79 м², 5 эт. 5 210 000
  • Количество комнат 2
  • Общая площадь 51.79 м²
  • Жилая площадь 28.68 м²
  • Площадь кухни 11.66 м²
2-к.квартира, 51.79 м², 6 эт. 5 270 000
  • Количество комнат 2
  • Общая площадь 51.79 м²
  • Жилая площадь 28.68 м²
  • Площадь кухни 11.66 м²
2-к.квартира, 51.79 м², 10 эт. 5 210 000
  • Количество комнат 2
  • Общая площадь 51.79 м²
  • Жилая площадь 28.68 м²
  • Площадь кухни 11.66 м²
2-к.квартира, 51.79 м², 17 эт. 5 210 000
  • Количество комнат 2
  • Общая площадь 51.79 м²
  • Жилая площадь 28.68 м²
  • Площадь кухни 11.66 м²
2-к.квартира, 51.79 м², 19 эт. 5 320 000
  • Количество комнат 2
  • Общая площадь 51.79 м²
  • Жилая площадь 28.68 м²
  • Площадь кухни 11.66 м²
2-к.квартира, 51.79 м², 15 эт. 5 210 000
  • Количество комнат 2
  • Общая площадь 51.79 м²
  • Жилая площадь 28.68 м²
  • Площадь кухни 11.66 м²
2-к.квартира, 51.79 м², 7 эт. 5 190 000
  • Количество комнат 2
  • Общая площадь 51.79 м²
  • Жилая площадь 28.68 м²
  • Площадь кухни 11.66 м²

Другие объекты застройщика ООО СЗ «КОНТИНЕНТИНВЕСТ»:

2
ЖК «Друг»
Краснодар, ул. Дальневосточная, стр. 1
Карасунский, Новознаменский
5 220 000
  • 2-комн. от  5 220 000
11
ЖК «Друг»
Краснодар, ул. Дальневосточная, стр. 3

7 150 000
  • 3-комн. от  7 150 000
12
ЖК «Друг»
Краснодар, ул. Дальневосточная, стр. 10

4 000 000
  • 1-комн. от  4 000 000
  • 2-комн. от  4 900 000
  • 3-комн. от  6 500 000
14
ЖК «Друг»
Краснодар, ул. Дальневосточная, стр. 1
Карасунский, Новознаменский
4 290 000
  • 1-комн. от  4 290 000
12
ЖК «Друг»
Краснодар, ул. Дальневосточная, стр. 3

4 300 000
  • 1-комн. от  4 300 000
16
ЖК «Друг»
Краснодар, ул. Дальневосточная, стр. 3

5 699 000
  • 2-комн. от  5 699 000
13
ЖК «Друг»
Краснодар, ул. Дальневосточная, стр. 9

5 650 000
  • 2-комн. от  5 650 000
15
ЖК «Друг»
Краснодар, ул. Дальневосточная, стр. 1

6 020 000
  • 2-комн. от  6 020 000
  • 3-комн. от  7 499 000
11
ЖК «Друг»
Краснодар, ул. Дальневосточная, стр. 3

5 990 000
  • 2-комн. от  5 990 000

Вас также может заинтересовать:

5
ЖР «Восточный, Квартал №6»
Краснодар, ул. Генерал-лейтенанта Александра Сапрунова, д. 15

6 100 000
  • 2-комн. от  6 100 000
12
ЖК «Друг»
Краснодар, ул. Дальневосточная, стр. 3

4 300 000
  • 1-комн. от  4 300 000
12
ЖК «Друг»
Краснодар, ул. Дальневосточная, стр. 10

4 000 000
  • 1-комн. от  4 000 000
  • 2-комн. от  4 900 000
  • 3-комн. от  6 500 000

Мы используем файлы cookie, чтобы обеспечить вам наилучший доступ к нашему веб-сайту

Скопировано