г. Краснодар, ул Домбайская, д 55
Пн-пт с 09:00 до 21:00, Сб-вс с 10:00 до 18:00

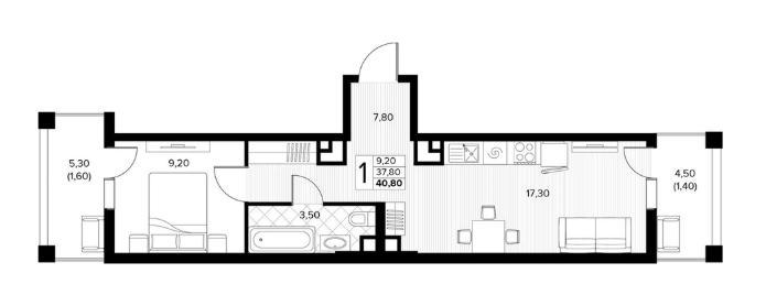
Квартира 40,8 кв м РЕМОНТ ID: J1276

Супсех, с. Сукко, ул. Мирная/Верхняя, стр. 7

Сдача 1 / 2026 г.
Материал Монолитный
Кв. в продаже 1
9 650 000
от 236 519 /м²
Рассчитать ипотеку
QR
Ссылка на объект

Описание

Жилой комплекс расположен по адресу: Россия, Краснодарский край, муниципальный округ Анапа, село Сукко
На территории ЖК будут располагаться: бассейн, детская и спортивная площадки. Многолетние насаждения подчёркивают природную красоту комплекса и создают спокойный уголок в сердце динамичного мира.
ВНИМАНИЕ ЦЕНА УКАЗАНА ЗА КВАРТИРУ С РЕМОНТОМ!
У жителей комплекса всегда есть возможность окунуться и освежиться в любой момент. Просторные бассейны для плавания, уютные зоны для релаксации с шезлонгами и зонтиками, а также специальные безопасные неглубокие бассейны для детей — идеальное место для семейного отдыха и активного времяпрепровождения на свежем воздухе. Всего на территории комплекса 7 бассейнов общей площадью 2600 кв.м. Место для занятий спортом находится в дальней части комплекса, что обеспечивает комфорт как для жильцов, так и для занимающихся на площадке. На территории комплекса есть теннисный корт, поле для игр с мячом, различные тренажеры, места для занятий йогой и мини-гольфом. От ЖК начинаются различные тропы и маршруты, которые можно покорить пешком или на велосипеде.

Функциональное зонирование в благоустройстве территории ЖК спроектировано так, что места для детских игр, как младшего, так и среднего возраста находятся рядом с входами в жилые здания. Это делает прогулки и игры детей максимально безопасными. Места отдыха для родителей находятся ближе к центру территории комплекса и позволяют не только отдыхать, но и наблюдать за играющими детьми. Игровые площадки спроектированы с учетом разных возрастных групп детей, сочетая в себе и зоны отдыха, и зоны активных занятий.

На территории комплекса предусмотрены собственные школа и детский сад. В распоряжении жителей комплекса салон красоты, аптеки, магазины и даже почтовое отделение в шаговой доступности — буквально все, что нужно для комфортной жизни.

Чистый воздух, живописная природа и современные технологии строительства создают идеальные условия для жизни без стресса и забот. Благодаря удачному расположению в экологически чистом районе, жители смогут наслаждаться тишиной и спокойствием, не теряя связи с городом. ЖК находится в локации, где морской воздух соединился с целебным ароматом можжевельников и кипарисов.

Проект включает 12 домов в стильном южном архитектурном исполнении, напоминающем о приятной расслабленности, характерной для средиземноморских курортов. Жилой комплекс отличается тщательно продуманной архитектурной композицией, призванной наполнить каждую квартиру солнечным светом. Применение "мокрого" фасада и использование светлых, теплых оттенков в оформлении зданий создают ощущение уютной гармоничной атмосферы. Во всех квартирах ЖК предусмотрен ремонт от застройщика, выполненный "под ключ". Будущим новоселам не придется тратить время и силы на самостоятельную отделку — все работы, включая установку сантехники, электрики, укладку напольных покрытий и декоративную отделку стен будут выполнены.
Подробнее

Характеристики

  • Тип недвижимости Новостройки
  • Населенный пункт Супсех
  • Адрес с. Сукко, ул. Мирная/Верхняя, стр. 7
  • Название ЖК ЖК «Кипарис»
  • Идентификатор корпуса ЖК Позиция 7
  • Срок сдачи год 2026 г.
  • Класс жилья Комфорт
  • Тип дома Монолитный
  • Тип сделки переуступка прав
  • Стадия строительства дом построен, но не сдан
  • Срок сдачи квартал 1
  • Апартаменты нет

Задать вопрос


1-к.квартира, 40.8 м², 3 эт. 9 650 000
  • Количество комнат 1
  • Общая площадь 40.8 м²
  • Жилая площадь 17.8 м²
  • Площадь кухни 9.2 м²

Другие объекты застройщика ООО «Специализированный Застройщик «ЛЕГИС»:

8
ЖК «Кипарис»
Супсех, с. Сукко, ул. Мирная/Верхняя, стр. 7

8 044 000
  • 1-комн. от  8 044 000
8
ЖК «Кипарис»
Супсех, с. Сукко, ул. Мирная/Верхняя, стр. 7

9 503 000
  • 1-комн. от  9 503 000
8
ЖК «Кипарис»
Супсех, с. Сукко, ул. Мирная/Верхняя, стр. 7

8 551 000
  • 1-комн. от  8 551 000

Вас также может заинтересовать:

8
ЖК «Кипарис»
Супсех, с. Сукко, ул. Мирная/Верхняя, стр. 7

8 044 000
  • 1-комн. от  8 044 000
8
ЖК «Кипарис»
Супсех, с. Сукко, ул. Мирная/Верхняя, стр. 7

8 551 000
  • 1-комн. от  8 551 000
8
ЖК «Кипарис»
Супсех, с. Сукко, ул. Мирная/Верхняя, стр. 7

9 503 000
  • 1-комн. от  9 503 000

Мы используем файлы cookie, чтобы обеспечить вам наилучший доступ к нашему веб-сайту

Скопировано